
コラム
二階リビングは老後でも安心して暮らせる?老後を考えると二階リビングは止めるべき?
二階リビングは年を取って階段の上り下りが辛くなったら暮らせなくなってしまうのではないかといった意見が一定数あります。
四季工房の家づくりを実際に体感しませんか?
お近くのモデルハウスへお越しください。
老後を考えた家づくりについて

老後のことだけを考えて家づくりをする場合、リビングは一階にして、できれば平屋にするのがベストかもしれません。
しかし、その前に老後の暮らしの現実について考えなければなりません。老後には介護という問題がワンセットでついてきます。
・将来、建てた家で介護を受けることになるのかということはわからない
・階段の昇り降りができなくなった時点で建てた家で暮らすことができなくなっているかもしれない
・将来、介護が必要なとき、どんな環境・設備が必要なのかということはわからない
・介護に必要な環境・設備は健常な人には邪魔になる
今の新築の家は、段差がないバリアフリー構造が基本です。
老後の介護のことを考えて、いろいろなことを間取りに盛り込んでしまうと余計な建築費がかかるだけでなく、老後までの何十年もある生活に支障をきたしてしまう可能性があります。
家づくりで一番大切なことはなにか?

老後のことを考えるあまり、今の暮らしを十分に楽しめない家をつくってしまっては本末転倒です。
家族にとって家づくりで何が一番大切なのかよく考えてみることが大切です。
また、家は住む人の暮らし方に合わせた間取りを設計するのはもちろんですが、土地の要件に合わせることが重要です。老後のことだけを考えて二階リビングを諦めてしまうのはあまりにも勿体ないことです。
二階リビングのメリットとデメリットについて

家族にとって何が一番家づくりで大切なことなのか、どんな家が土地の要件に合うのかよく考えることをお薦めしたうえで、二階リビングのメリットとデメリットについて解説していきます。
二階リビングのメリット

・日当りを確保することができる
・周りの視線を気にしなくてもよい
・見晴らしを良くできる
・風通しを良くできる
日当りを確保することができる
南側に隣家などが迫っていて、一階は一日中、日が差さず、二階は日当たりが良い敷地の場合、二階リビングにすることにより、日当たりを確保することができます。
周りの視線を気にしなくてもよい
人通りが多い道路に面している場合、リビングのカーテンをいつも閉めておかねばならない問題が解消できます。
見晴らしを良くできる
一階では見晴らしが悪くても、二階の高さでは見晴らしが良い場合、景色を楽しめるリビングにすることができます。
風通しを良くできる
敷地の周りに建物が近接して建っていたり、周囲の土地が高くて土留めコンクリート壁があり風通しが悪い場合、リビングを二階にすることで風通しを良くすることができます。
二階リビングのデメリット

・リビングから庭が直接楽しめない
・家族空間が外部とのつながりを失う
・日常的に階段の上り下りが生じる
リビングから庭が直接楽しめない
庭を眺めるのが好きな方にとっては見晴らしを良くできるのと引き換えに庭を直接リビングから眺めることができなくなります。
庭の草花や低木を眺めることは叶いませんが、成長した木々の枝葉を上から眺めるという二階リビングならではの楽しみ方もあります。
家族空間が外部とのつながりを失う
二階リビングにすることにより、直接的な外部(庭)とのつながりを失ってしまいます。
費用はかかりますが、スカイテラス(大きめのベランダ)を設けることにより外部とのつながりを確保することもできます。テーブルを置いてティータイム、プランターでキッチンガーデンなど二階リビングならではの楽しみ方もあります。
日常的に階段の上り下りが生じる
日常的に階段の上り下りが生じます。買い物やゴミ出しが面倒だと思う方もいらっしゃるかもしれません。
ただ、階段の上り下りについては「階段を一段上ると、寿命が4秒延びる」という研究結果もあり、毎日階段を上り下りした結果として健康な老後を過ごせたということもあり得るのではないでしょうか。
四季工房が実現する二階リビングの間取り

四季工房では、二階リビングにおける『広がりの間取り』を間取りプランとして掲載しています。ここでは、以下2点の間取り例について解説していきます。
・家族の寝室をすべて一階に設けた間取り
・周囲の美しい風景が眺望できる二階リビング(プラン14)
順番に見ていきましょう。
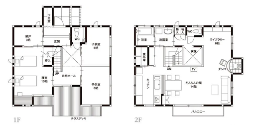
家族の寝室をすべて一階に設けた間取り

| 延床面積 | 125.61㎡(38.00坪) |
| 1F床面積 | 61.15㎡(18.50坪) |
| 2F床面積 | 64.46㎡(19.50坪) |
※参考:二階リビング – 福島の注文住宅、自然素材の家なら株式会社四季工房|四季工房
一階に全ての寝室を設けることで、広々とした二階リビングを実現しています。これにより家屋団欒とパーソナルスペースの両方を確保できる間取りとなっています。
周囲の美しい風景が眺望できる二階リビング(プラン14)

| 延床面積 | 128.10㎡(38.75坪) |
| 1F床面積 | 63.64㎡(19.25坪) |
| 2F床面積 | 64.46㎡(19.50坪) |
※参考:二階リビング – 福島の注文住宅、自然素材の家なら株式会社四季工房|四季工房
風景が良い場所に家を建てるのであれば、二階リビングがおすすめです。ここで提案している間取りでは、北西方向にテラスを設置し、いつでも眺望を楽しめる工夫がされています。
二階リビングを諦める前に

老後のことを考えて二階リビングを諦める前に、家族にとって家づくりで何が一番大切なのか、土地の要件がどうなのかよく考えてみましょう。
四季工房ではメリットとデメリットを踏まえて、二階リビングの暮らしを提案しています。
二階リビングに興味がある方は、ぜひ一度四季工房までお問合せください。
四季工房の家づくりを実際に体感しませんか?
お近くのモデルハウスへお越しください。




